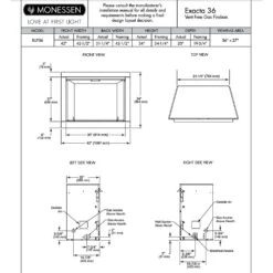
Monessen BUF36A Exacta 36-Inch Vent-Free Firebox with Gas Log Set provides a premium vent-free gas fireplace option for your home. Featuring durable construction and authentic ambiance, the Exacta fireplace provides warmth and atmosphere for nearly any space. The vent-free design of this unit offers incredible efficiency, while its zero clearance design allows for easier installation. A clean, louverless design offers a high quality appearance, while a hideaway fireplace screen allows for impressive firebox viewing potential. This fireplace has also been engineered for maximum efficiency with an innovative angled firebox and air channels designed to move more heat into the room.
The Exacta fireplace can be customized in a variety of ways to meet the needs of your installation. Multiple liner options allow the interior to match nearly any décor, while various log set configurations allow for a personalized appearance for your firebox. This fireplace can be purchased with a manual ignition, a millivolt ignition or an IPI electronic ignition. PLEASE NOTE: Not all options are available for all models.
Features
- Vent-free design provides incredible efficiency; note: vent-free fireplaces are restricted by some local building codes
- Zero clearance design allows for versatile installation and design flexibility
- Screen tucks into hideaway pockets for expansive views
- Deep firebox provides ample space for log set of your choice

























Reviews
There are no reviews yet.